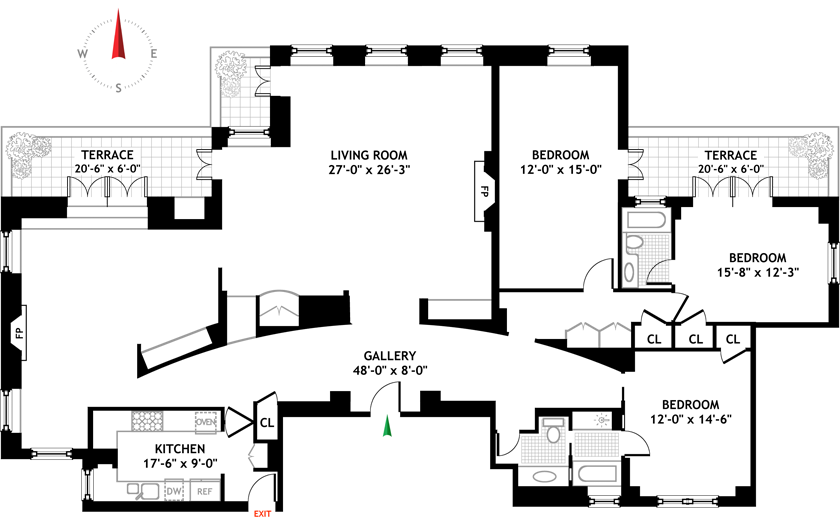
Three Bedroom Simplex Close